![]() |
![]() Saldature Certificate |
Iso 9001 |
|
![]() |
![]() |
![]() Privacy GDPR |
| Home |
![]() |
![]() |
![]() |
Milano Via
Triboniano 133 - Roma, Aprilia via Piana 4 |
Chiama +39 02 3085504 | Referenze | Lavori | PI 07389390969 |
|
Waldem Container Shelter Srl Produce dal 1983, Produce Vende e Noleggia




Prefabbricati Spogliatoio per Centri Sportivi (Calcio, Tennis, Calcetto, BeachVolley, Basket).
Moduli prefabbricati. e Container ISo Marini 20' e 40' Modificati e allestiti. (Container Vetrati Calcio con Spogliatoio ).
spogliatoi per stadio, impianti sportivi, a bordo del campo.
Costruzioni realizzate da zero con materiali prefabbricati tipo mini capannoni (vedi foto sinistra).
Monoblocchi spogliatoi per campi calcio



Le soluzioni ottimali vengono studiate insieme
al cliente, a seguire proponiamo alcune configurazioni tipo. Rivolgiti a noi
con fiducia.
La larghezza standard delle unità trasportabili è
mm.2400, realizziamo una larghezza di mm.3000 che prevede una maggiorazione
economica per il trasporto.
L'altezza interna può essere mm. 2400 o 2700, a scelta
del cliente.
Chiedi quotazione con Trasporto in base a Km con o senza Gru. OPPURE
Contattami su WhatsApp
![]()


| tipo | lunghezza esterna | larghezza esterna | larghezza interna | altezza esterna | altezza interna | |
| Modello D3 | 3150 | 2400 | 2300 | 2480 | 2200 | |
| Modello D3 | 3150 | 2400 | 2300 | 2680 | 2400 | |
| Modello D3 | 3150 | 2400 | 2300 | 2980 | 2700 | |
| Modello D3 | 4150 | 2400 | 2300 | 2480 | 2200 | |
| Modello D3 | 4150 | 2400 | 2300 | 2680 | 2400 | |
| Modello D3 | 4150 | 2400 | 2300 | 2980 | 2700 | |
| Modello D3 | 5150 | 2400 | 2300 | 2480 | 2200 | |
| Modello D3 | 5150 | 2400 | 2300 | 2680 | 2400 | |
| Modello D3 | 5150 | 2400 | 2300 | 2980 | 2700 | |
| Modello D3 | 6150 | 2400 | 2300 | 2480 | 2200 | |
| Modello D3 | 6150 | 2400 | 2300 | 2680 | 2400 | |
| Modello D3 | 6150 | 2400 | 2300 | 2980 | 2700 | |
| Modello D3 | 7150 | 2400 | 2300 | 2480 | 2200 | |
| Modello D3 | 7150 | 2400 | 2300 | 2680 | 2400 | |
| Modello D3 | 7150 | 2400 | 2300 | 2980 | 2700 | |
| Modello D3 | 8150 | 2400 | 2300 | 2480 | 2200 | |
| Modello D3 | 8150 | 2400 | 2300 | 2680 | 2400 | |
| Modello D3 | 8150 | 2400 | 2300 | 2980 | 2700 | |
| Modello D3 | 9150 | 2400 | 2300 | 2480 | 2200 | |
| Modello D3 | 9150 | 2400 | 2300 | 2680 | 2400 | |
| Modello D3 | 9150 | 2400 | 2300 | 2980 | 2700 | |
| Modello D3 | 10150 | 2400 | 2300 | 2480 | 2200 | |
| Modello D3 | 10150 | 2400 | 2300 | 2680 | 2400 | |
| Modello D3 | 10150 | 2400 | 2300 | 2980 | 2700 | |
| Modello D3 | 11150 | 2400 | 2300 | 2480 | 2200 | |
| Modello D3 | 11150 | 2400 | 2300 | 2680 | 2400 | |
| Modello D3 | 11150 | 2400 | 2300 | 2980 | 2700 | |
| Modello D3 | 12150 | 2400 | 2300 | 2480 | 2200 | |
| Modello D3 | 12150 | 2400 | 2300 | 2680 | 2400 | |
| Modello D3 | 12150 | 2400 | 2300 | 2980 | 2700 |
4 vani wc o doccia (allo stesso prezzo wc / doccia),
La lunghezza del monoblocco
determina la lunghezza dello spazio libero per lo spogliatoio.
La lunghezza del monoblocco determina la lunghezza
dello spazio libero per lo spogliatoio
nr. 1 lavabo in PST mm. 1000 x 400 con 2 rubinetti
acqua fredda;
linea elettrica dedicata con protezione su
linea
| tipo | lunghezza esterna | larghezza esterna | larghezza interna | altezza esterna | altezza interna | PREZZO + IVA |
| Modello D4 | 4150 | 2400 | 2300 | 2480 | 2200 | |
| Modello D4 | 4150 | 2400 | 2300 | 2680 | 2400 | |
| Modello D4 | 4150 | 2400 | 2300 | 2980 | 2700 | |
| Modello D4 | 5150 | 2400 | 2300 | 2480 | 2200 | |
| Modello D4 | 5150 | 2400 | 2300 | 2680 | 2400 | |
| Modello D4 | 5150 | 2400 | 2300 | 2980 | 2700 | |
| Modello D4 | 6150 | 2400 | 2300 | 2480 | 2200 | |
| Modello D4 | 6150 | 2400 | 2300 | 2680 | 2400 | |
| Modello D4 | 6150 | 2400 | 2300 | 2980 | 2700 | |
| Modello D4 | 7150 | 2400 | 2300 | 2480 | 2200 | |
| Modello D4 | 7150 | 2400 | 2300 | 2680 | 2400 | |
| Modello D4 | 7150 | 2400 | 2300 | 2980 | 2700 | |
| Modello D4 | 8150 | 2400 | 2300 | 2480 | 2200 | |
| Modello D4 | 8150 | 2400 | 2300 | 2680 | 2400 | |
| Modello D4 | 8150 | 2400 | 2300 | 2980 | 2700 | |
| Modello D4 | 9150 | 2400 | 2300 | 2480 | 2200 | |
| Modello D4 | 9150 | 2400 | 2300 | 2680 | 2400 | |
| Modello D4 | 9150 | 2400 | 2300 | 2980 | 2700 | |
| Modello D4 | 10150 | 2400 | 2300 | 2480 | 2200 | |
| Modello D4 | 10150 | 2400 | 2300 | 2680 | 2400 | |
| Modello D4 | 10150 | 2400 | 2300 | 2980 | 2700 | |
| Modello D4 | 11150 | 2400 | 2300 | 2480 | 2200 | |
| Modello D4 | 11150 | 2400 | 2300 | 2680 | 2400 | |
| Modello D4 | 11150 | 2400 | 2300 | 2980 | 2700 | |
| Modello D4 | 12150 | 2400 | 2300 | 2480 | 2200 | |
| Modello D4 | 12150 | 2400 | 2300 | 2680 | 2400 | |
| Modello D4 | 12150 | 2400 | 2300 | 2980 | 2700 |

| tipo | lunghezza esterna | larghezza esterna | larghezza interna | altezza esterna | altezza interna | prezzo + IVA |
| Modello D6 | 6150 | 2400 | 2300 | 2480 | 2200 | |
| Modello D6 | 6150 | 2400 | 2300 | 2680 | 2400 | |
| Modello D6 | 6150 | 2400 | 2300 | 2980 | 2700 | |
| Modello D6 | 7150 | 2400 | 2300 | 2480 | 2200 | |
| Modello D6 | 7150 | 2400 | 2300 | 2680 | 2400 | |
| Modello D6 | 7150 | 2400 | 2300 | 2980 | 2700 | |
| Modello D6 | 8150 | 2400 | 2300 | 2480 | 2200 | |
| Modello D6 | 8150 | 2400 | 2300 | 2680 | 2400 | |
| Modello D6 | 8150 | 2400 | 2300 | 2980 | 2700 | |
| Modello D6 | 9150 | 2400 | 2300 | 2480 | 2200 | |
| Modello D6 | 9150 | 2400 | 2300 | 2680 | 2400 | |
| Modello D6 | 9150 | 2400 | 2300 | 2980 | 2700 | |
| Modello D6 | 10150 | 2400 | 2300 | 2480 | 2200 | |
| Modello D6 | 10150 | 2400 | 2300 | 2680 | 2400 | |
| Modello D6 | 10150 | 2400 | 2300 | 2980 | 2700 | |
| Modello D6 | 11150 | 2400 | 2300 | 2480 | 2200 | |
| Modello D6 | 11150 | 2400 | 2300 | 2680 | 2400 | |
| Modello D6 | 11150 | 2400 | 2300 | 2980 | 2700 | |
| Modello D6 | 12150 | 2400 | 2300 | 2480 | 2200 | |
| Modello D6 | 12150 | 2400 | 2300 | 2680 | 2400 | |
| Modello D6 | 12150 | 2400 | 2300 | 2980 | 2700 |

| tipo | lunghezza esterna | larghezza esterna | larghezza interna | altezza esterna | altezza interna | PREZZO + IVA |
| Modello D6 | 6150 | 2400 | 2300 | 2480 | 2200 | |
| Modello D6 | 6150 | 2400 | 2300 | 2680 | 2400 | |
| Modello D6 | 6150 | 2400 | 2300 | 2980 | 2700 | |
| Modello D6 | 7150 | 2400 | 2300 | 2480 | 2200 | |
| Modello D6 | 7150 | 2400 | 2300 | 2680 | 2400 | |
| Modello D6 | 7150 | 2400 | 2300 | 2980 | 2700 | |
| Modello D6 | 8150 | 2400 | 2300 | 2480 | 2200 | |
| Modello D6 | 8150 | 2400 | 2300 | 2680 | 2400 | |
| Modello D6 | 8150 | 2400 | 2300 | 2980 | 2700 | |
| Modello D6 | 9150 | 2400 | 2300 | 2480 | 2200 | |
| Modello D6 | 9150 | 2400 | 2300 | 2680 | 2400 | |
| Modello D6 | 9150 | 2400 | 2300 | 2980 | 2700 | |
| Modello D6 | 10150 | 2400 | 2300 | 2480 | 2200 | |
| Modello D6 | 10150 | 2400 | 2300 | 2680 | 2400 | |
| Modello D6 | 10150 | 2400 | 2300 | 2980 | 2700 | |
| Modello D6 | 11150 | 2400 | 2300 | 2480 | 2200 | |
| Modello D6 | 11150 | 2400 | 2300 | 2680 | 2400 | |
| Modello D6 | 11150 | 2400 | 2300 | 2980 | 2700 | |
| Modello D6 | 12150 | 2400 | 2300 | 2480 | 2200 | |
| Modello D6 | 12150 | 2400 | 2300 | 2680 | 2400 | |
| Modello D6 | 12150 | 2400 | 2300 | 2980 | 2700 |

| tipo | lunghezza esterna | larghezza esterna. | largh. Interna | altezza esterna | altezza interna | Prezzo+iva |
| SAN 10 | 2400 | 2400 | 2270 | 2790 | 2400 | 3900 |
ECCO ALTRI ESEMPI.
Verificate i vari modelli di seguito specificati e fateci
sapere quale modello si avvicina maggiormente alle vostre esigenze.
Eventualmente mandate uno schizzo in pianta di come vorreste realizzare il prefabbricato.
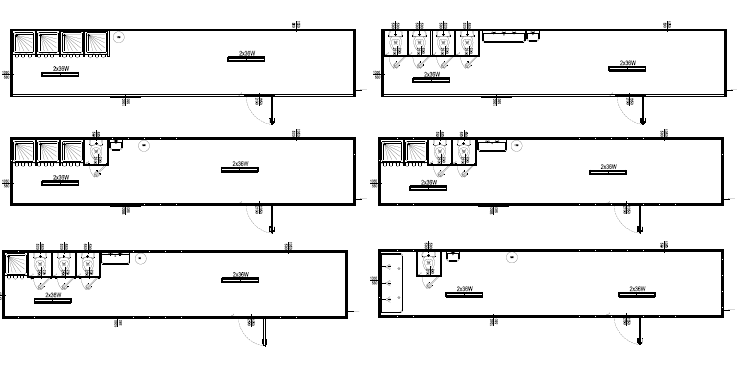
1) spogliatoi
calcetto tennis singoli

2) spogliatoi calcetto tennis singoli


3) spogliatoio calcetto tennis con ufficio o magazzino

4) spogliatoio calcetto tennis singolo due docce con ambiente centrale

5) spogliatoio calcetto tennis due squadre 3 docce docce

6) due spogliatori calcetto tennis per due squadre,

7) due spogliatoi calcetto tennis per due squadre,allenatore arbitro al centro

8) due spogliatoi calcetto per due squadre,

9) due spogliatoi per squadre calcetto . spogliatoio centrale arbito

10) due spogliatoi affiancati calcetto tennis per due squadre, dimensioni mt. 12x5

11) due spogliatori calcetto per due squadre, dimensioni mt. 12x5

11b) quattro spogliatori calcetto per 4 squadre PADEL, dimensioni mt. 12x5

12) due spogliatoi calcio 11 per due squadre,spogliatoio centrale arbitro e allenatori, dimensioni mt. 12x12

13) due spogliatoi calcio 11 per due squadre,spogliatoio centrale arbitro e allenatori (mt 12x 12)

14)due spogliatoi calcio 11 per due squadre,spogliatoio centrale arbitro e allenatori (mt 27x5)




Prezzo+iva + IVA

Prezzo+iva + IVA
MODELLO
DISABILI E NORMO H044
Waldem un marchio Registrato
|
Ricevi le Nostre Offerte Speciali "MYContainer":
Viene inviata una e-mail di conferma
|