![]() |
![]() Saldature Certificate |
Iso 9001 |
|
![]() |
![]() |
![]() Privacy GDPR |
| Home |
![]() |
![]() |
![]() |
Milano Via Triboniano 133 - Roma, Aprilia via Piana 4 |
Chiama +39 02 3085504 | Referenze | Lavori | PI 07389390969 |
|




























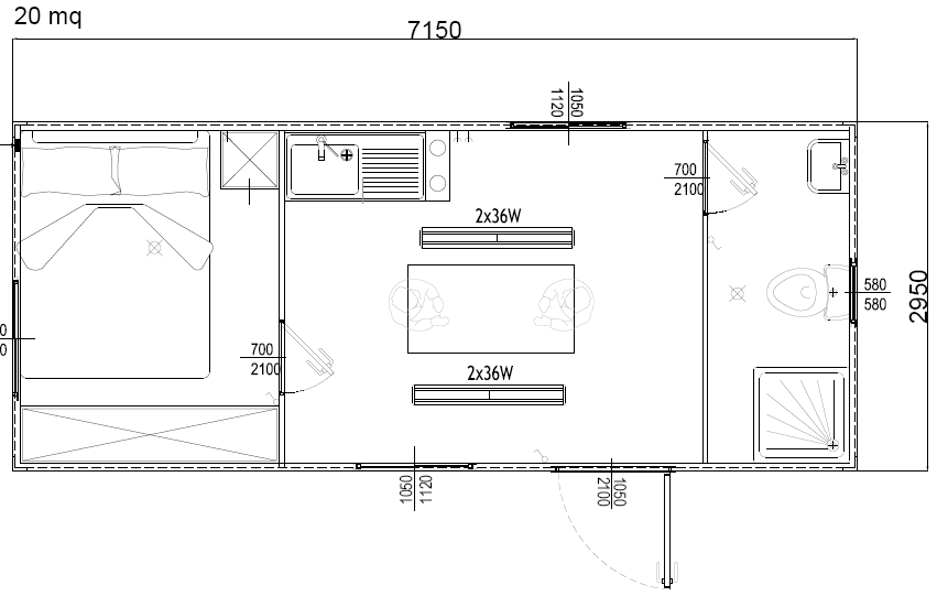
Spaccato
di un Container in Classe A.

Container
strutture Turistico alberghiere
.
| CONTAINER
20 e 40' BOX ISO nuovi o Usati Allestiti
per Var Cioschi Ristoranti Cucina. "6059 X 2438 X 2591 h interna 2380 (escluso coibentaz) realizzato in parti di acciaio saldato, pareti lamiera 2 mm grecate, tetto camminabile lamiera 2mm ondulata, montanti sp. mm 7 , pavimento lamiera mandorlata verniciata mm 4,5 , Nr. 8 blocchi d'angolo sui vertici, porta a doppio battente su un lato corto con aste di chiusura ganci sopra e sotto. Sono impilabili. disponiamo di Twist interbloccanti per bloccaggio container sovrapposti. PREZZO del container EURO 1100/ 1300 + iva Container Usato Stagno, pavimento liscio, (con ammaccature) PREZZO EURO 2600 / 2800 + IVA Container Nuovo Singolo Viaggio colore Grigio o Blu |
![]() |
| Lato lungo taglio 5500x2100 Applicazione profilo U sotto e sopra applicazione di vetrata in vetro antisfondamento o policarbonato spessore 3 mm , nr 2/3 profili di irrigidimento verticali Da quotare in base a dimensioni finestra e qualità |
![]() |
| Porte singolo battente, Doppio battente maniglione antipanico Varie dimensioni Finestre Vetrate fisse o scorrevoli, vetri antisfondamento, vetri doppi, policarbonato da quotare in base a qualità e dimensioni |
![]() |
| COIBENTAIZONE interna effettuata con pannello sandwich Poliuretano espanso o lana di roccia solo soffitto tutto il container Da quotare in base a spessore e qualità |
![]() |
| Accessori
per Container e Monoblocchi Prefabbricati Condizionatore Aria freddo 12000 Btu tipo monoblocco finestra , telecomando |
![]() |
| Tetto calpestabile su container 20'
e 40' Terrazza 400 kg metro quadrato, (putrelle di rinforzo sotto al tetto ) superficie lamiera mandorlata o paiolo legno multistrato marino, o pavibollo gomma, ecc. Raccolta scoli acqua piovana Parapetto perimetrale tetto, con sicurezza, da quotare in base a Qualità (ferro verniciato, zincato, alluminio, vetro ecc) Da Quotare |
![]() |
| Container Chiosco Portellone a sbalzo parete mezza parete. Varie Lungghezze Pistoni a gas Da quotare- |
![]() |
| Sportelli finesta,
Ante apribili a sbalzo o scorrevole h 1000/1500 Pop up container Portellone a sbalzo tutta altezza apribile a sbalzo Parete lunga totale o parete corta Pistoni a gas o idraulici con sicurezza Da quotare. |
![]() |
| Bancone Bar per chiosco Legno ply wood marino o altro materiale In base a qualità e dimensioni Arredo bar da quotare |
![]() |
| Porta doppio battente vetrata (vetro
antisfondamento doppio) fascia centrale con maniglione antipanico interno su una anta dimensioni 2100X 2200 circa Telaio in alluminio bianco o colorato Serratura Da quotare |
![]() |
| Tenda parasole, estraibile a sbalzo ombreggiatura del tetto tramite controtetti Banconi in legno o in acciaio da quotare In base a qualità e dimensioni |
![]() |
| Coperture esterne estetiche e coibentanti Cappotti termici in pannelli sandwich Lamiere esterne Pannellature esterne Da quotare |
![]() |
| Scale con corrimano accesso a tetto,dall'esterno o dall'interno in acciaio zincato o in alluminio , larghezza cm 60 /100, Da quotare in base a qualità |
![]() |
| Tetto verde Prato, vegetazione. Vasca stagna per terrapieno Scoli acqua piovana Da quotare |
![]() |
| Coperture esterne. Cappotti termici ed estetici. Coibentazioni esterne Pannellature esterne in Legno o altro materiale Da quotare |
![]() |
Se sei interessato approfondisci con noi, non rimarrai deluso. I prezzi
vanno confermati.
Waldem un marchio Registrato
|
Ricevi le Nostre Offerte Speciali "MYContainer":form
action="../double_opt-in_php/NL-process.php" method="post"
name="form1">
Viene inviata una e-mail di conferma
|